





Poelstraat – Lebbeke
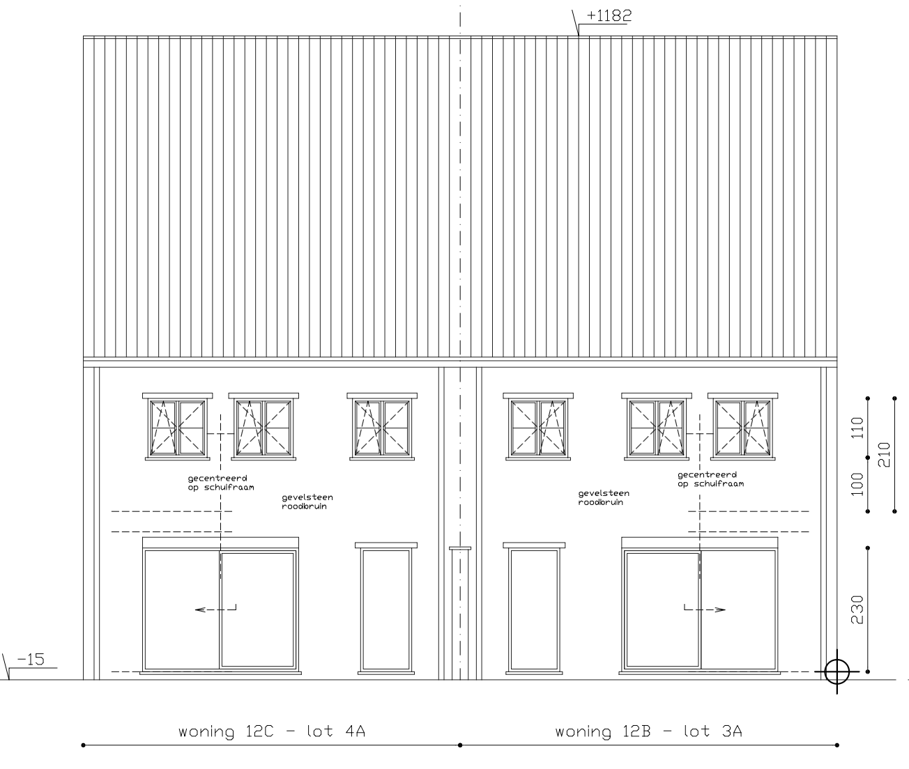
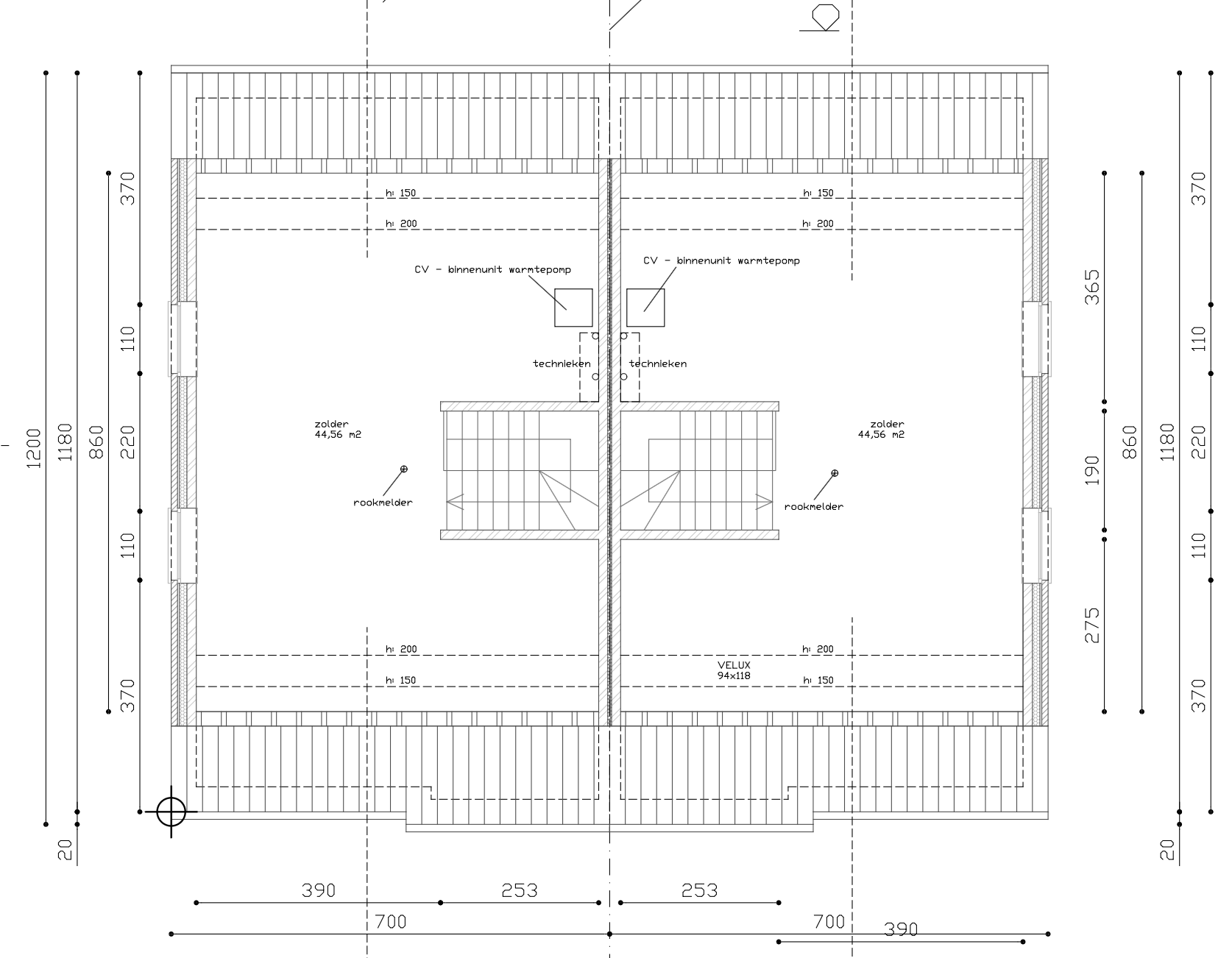
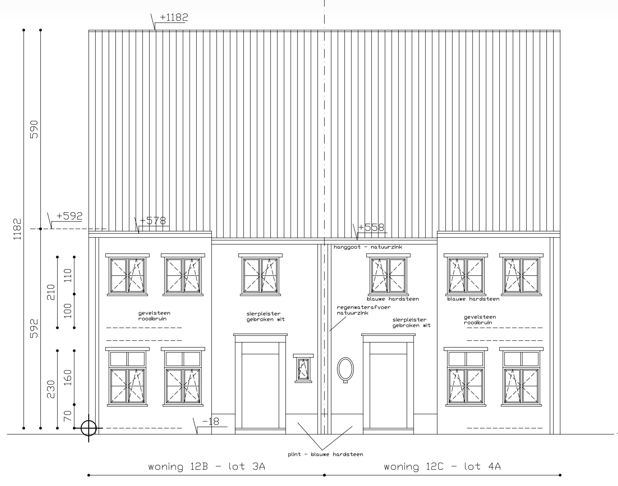
In een zeer landelijke en rustige omgeving vindt u deze twee halfopen in pastorijstijl. Beiden hebben een goede oriëntatie en een gezellige tuin, de landelijke ligging is absoluut een troef. De ruime woningen beschikken over een inkomhal met gastentoilet, leefruimte met zithoek en eethoek, open keuken, berging, toegang tot het terras en de tuin en vergeet de handige bureauruimte niet . Op de verdieping bevinden er zich drie slaapkamers waarvan telkens één master bedroom met dressing, afzonderlijk toilet en een badkamer met ruimte voor zowel bad als douche. De technieken worden op de daarvoor voorziene ruimte op de zolder geplaatst. De zolder kan afgewerkt worden tot hobbykamer of extra slaapkamer dankzij de toegankelijkheid via een vaste betonnen trap.
- Zeer rustige ligging
- Goede oriëntatie
- 3 slaapkamers.
- Berging.
- Afzonderlijk bureau
- Ruime zolder
- Aangename tuinen.
Lot 3 (links):
Bewoonbare opp: ca 210m² Grond opp: 889m²- HOB – 3 slpk
Grond + ruwbouw winddicht.
Prijs: 429.000€
Lot 4 (rechts):
Bewoonbare opp: ca 210m² Grond opp: 802m² – HOB – 3 slpk
Grond + ruwbouw winddicht.
Prijs: 423.000€
Prijzen excl.registratie grond, btw op constructie en notariskosten.
De afwerking van de woning kan reeds vanaf 115.000€ excl BTW uitgevoerd door derde partijen/aannemers
Lastenboek Poelstraat






